Продам загородную недвижимость в Ростове-на-Дону

Загородная недвижимость в Ростове-на-Дону
Цена 6 500 000 р.
Объект недвижимости Дом
Загородный населенный пункт Николаевка с.
Район Неклиновский
Адрес Советская, 16
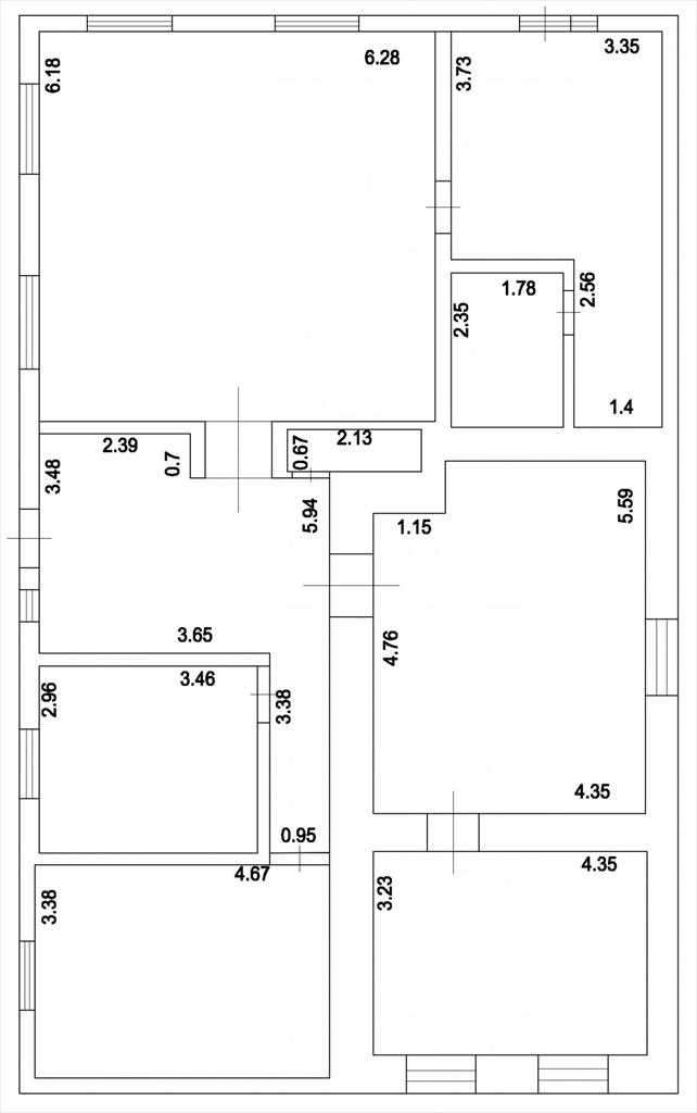
Площадь 141,5 м2
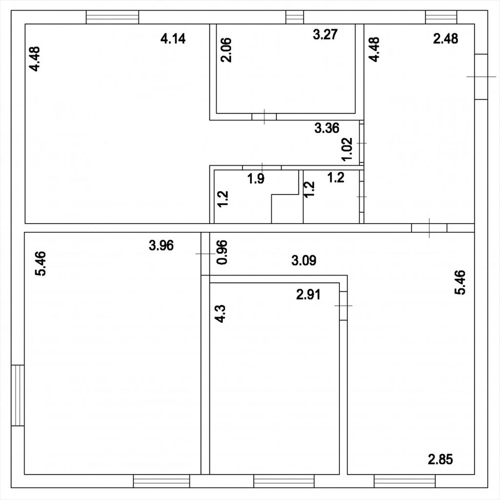
Арт. 66202672 <p class="ql-align-justify">Продается дом площадью 141,5 кв.м. с баней площадью 95,8 кв.м. и гаражом на участке 21,28 соток земли по адресу: Ростовская область, Неклиновский район, село Николаевка, ул. Советская 16.<p class="ql-align-justify"> <p class="ql-align-justify">Работаем по программе обмена. Принимаем в счет частичной или полной оплаты ликвидные объекты недвижимости (квартиры, дома и части домов, комнаты, земельные участки).<p class="ql-align-justify"> <p class="ql-align-justify">В доме 5 жилых комнат. Косметическое жилое состояние. Баня. Большой гараж. Теплица. Вход и въезд. Индивидуальное отопление. Вода, свет, газ - центральные. На все уставлены счетчики. Канализация – сливная яма. Низкие коммунальные платежи. Большой просторный участок (проведено межевание, разделен на зоны). По периметру забор. Удобный асфальтированный подъезд. Хороший, тихий район с развитой инфраструктурой.<p class="ql-align-justify"> <p class="ql-align-justify">Общая площадь дома 141,5 кв. м.:<p class="ql-align-justify">- Жилая площадь 103 кв.м. (5 комнат: 15,8 кв.м., 10,2 кв.м., 38,8 кв.м., 24,2 кв.м., 14,0 кв.м.);<p class="ql-align-justify">- Кухня площадью 16 кв.м.;<p class="ql-align-justify">- Ванная комната площадью 4,2 кв.м.;<p class="ql-align-justify">- Санузел площадью 1,5 кв.м.;<p class="ql-align-justify">Баня площадью 95,8 кв.м.;<p class="ql-align-justify">Площадь участка 21,28 сот. (участок размежёван, по периметру забор, вход, въезд).<p class="ql-align-justify"> <p class="ql-align-justify">Дом. Крыша - шиферная. 5 жилых комнат. Косметическое жилое состояние. На стенах обои, на полу ламинат или ковролин, натяжной потолок. Просторная кухня. На полу плитка. Стена и потолок обшиты пластиком. В кухне выделена зона под котельную, где установлен напольный газовый котел для отопления дома и висит газовая колонка для подогрева воды. Функциональная прихожая. Раздельные санузел с ванной комнатой. Потолок обшит пластиком. Стены и полы в плитке. Вода, Свет, газ - центральные. Канализация – сливная яма. На все установлены счетчики. Низкие коммунальные платежи. Металлопластиковые окна. Новые коммуникации. Из кухни выход на крытую веранду и во двор.<p class="ql-align-justify">Баня. Сложена из деревянного сруба. Внутри обшита деревом. 4 комнаты, баня, душевая. Окна – столярка. Все коммуникации заведены. В бане печное отопление.<p class="ql-align-justify">На участке большой ангар, которые выполняет роль гаража. Требует ремонта.<p class="ql-align-justify">Большой просторный участок, который легко позволит воплотить любые задумки по благоустройству дворовой территории. Участок разделен на зоны. Также есть вход и заезд со двора. <p class="ql-align-justify"> <p class="ql-align-justify">Мы сняли фото и видео. Обязательно посмотрите!<p class="ql-align-justify"> <p class="ql-align-justify">Дом находится в ближайшем пригороде города Таганрог (15 минут на машине от города). В спальном, тихом и спокойном районе. Самое востребованное направление пригорода. Очень комфортное, тихое место для семейного проживания. Место с развитой инфраструктурой. В шаговой доступности школа, садик, остановка общественного транспорта, магазины, храм.<p class="ql-align-justify"> <p class="ql-align-justify">Документы готовы к продаже. Все юридические проверки проведены.<p class="ql-align-justify"> Звоните сейчас. Выезжаю на показ быстро и оперативно. !!!Не приходите на объект без риэлтора. Показ возможен только по предварительному согласованию. Не нарушайте спокойствие собственников!!!
Объявление № 23533781
Дата подачи:
2 ноября 2025 г. 1:12
Дата обновления:
2 ноября 2025 г. 1:12
Просмотров 2 Хотите продать быстрее?

Продавец
Агентство недвижимости:
Редин Александр
email: alexandr.redin@gmail.com
Показать номер телефона
Пожаловаться
Комментарии:
Добавить